« WORK

VDB Cardinal

Bangalore

Client

Value Designbuild

Project Type

Residential

Built Area

30,000 sft

Status

Completed in 2012

 

Project Team

Kanika Thomas, Sreelakshmi Gupta, Akshatha D. Naik, Maya Lakshmanan

 

Structural Consultant

Design Cell

PHE & Electrical Consultant

Novel Consultants

Civil Contractors

Value DesignBuild

Photographs

Mallikarjun Katakol

 

Published:

Indian Architect & Builder, 2012

 

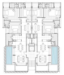
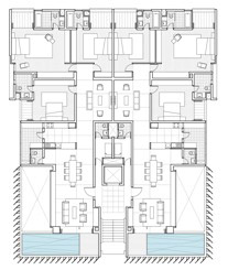
This is a small apartment building in a dense urban context. The 10 units are 300 sqm. each and have private pools of 2.4m x 6m. The pools alternate in location on the external facade of the building creating a dramatic composition of masses.

 

Given the proximity of the neighbouring buildings the pools are screened with pivoted slatted timber shutters. The project is an exercise in

using a small palette of materials in a disciplined way so all junctions and joints are articulated using a simple set of rules. We were also careful of the scale of our building within this dense context and its special corner aspect. Though inward looking the building still offers a porous facade to the street because of the slatted timber shutters.

 

Embedded in this dense urban context, the building takes its cues for scale and datums from its neighbours but abstracts these references, eschewing fenestrations and presenting just the volumes sheathed in the fine timber layer.

 

The screens are made simply using metal ‘L’ angles with timber slats and mounted on metal ‘C’ sections with heavy duty pivots.

 

This simple arrangement allows the residents to individually control the orientation of the shutters giving the facade a constantly changing aspect.

The street corner reveals the organization of the pools, alternating on each floor. The timber screens follow this arrangement creating a sequence of flat and deeply shaded recesses. Also integrated into this layer of screens are the kitchen utility balconies.

 

The building is made up of three material layers: the outer timber layer, the intermediate exposed concrete layer and the inner plastered and painted layer.

The ground floor setbacks are private gardens for the residents. The main stair is inserted between the two

apartment wings.

Pedestrian entry to the building is in the basement and along the street on the east this route is carved out and finished in a single material (black granite). The dramatic concrete masses hovering overhead heighten the quality of this excavated volume.

 

This granite clad entrance lobby in the basement is a quiet refuge away from the street under the canopy of trees along the street and the hovering mass of the first floor pool.

The pool and deck enclosed within the timber screens serves as an extension of the living/dining room. Sliding folding timber doors make an unobstructed connection possible. The pivoted shutters afford varying levels of privacy and intensity of light.

 

The pool of the apartment above is behind the blank wall on the right, above the seating.

Due to the organization of the pools there is a double height volume above every pool giving them the quality of an outdoor room partially enclosed and yet connected to the outside.

The section through the unit establishes a hierarchy from the lower, more intimate spaces within the plan (family room, bedrooms, etc.) to the taller living/dining room and the double height pool area.