« WORK

K-Start

Bangalore

with Design Integratus & Re-Collective

Client

Kalaari Capital

Project Type

Corporate interiors

Area

16,000 sft.

Status

Completed in 2016

 

Project Team

Harish Kumar (Design Integratus), Prachi Mathur

 

Electrical and Networking Consultant LS Consultants

Lighting Consultant

Prism Lighting

Audio/Visual Consultant

E&E Systems

Interior Contractor

Bhuraram

Photographs

Gokul Rao Kadam

 

 

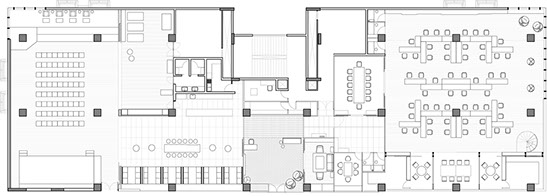
1 Reception/Foyer

2 Lounge

3 Cafe

4 Gym

5 Events

6 Board Room

7 Workspace

8 Co-Working Spaces

 

K-Start is an incubation hub - a space for different teams of entrepreneurs to work in an environment rich in stimuli, flexible enough to accommodate various team configurations and capable of hosting events, launches, discussions, etc.

 

Right from the start our client was interested in commissioning site specific art for the space and brought on board the celebrated local artist KK Raghava to curate the art. He set up a short term residency and invited other artists like Shilo Shiv Suleman, Sean Stevens and Nikhil More to develop a narrative and collaborate with us to integrate art into the interior design of the space.

 

Working closely with the artists we developed strategies to light, mount and celebrate the artwork.

Using a simple palette of materials (natural stone, brick, cement floors and timber) we sought to create an appropriate backdrop for the art, highlighting the work produced and creating an conducive environment for the art to be enjoyed.

 

The client leased out a small space adjacent to the office where the artists worked. Most of the art was produced here - in the span of one frenetic month. The artists were practically living on site and we were often conducting site visits late at night, going back and forth between the ‘studio’ and the ‘site’ - artists fine tuning their responses and us creating the appropriate context.

 

Also see Kalaari Capital's corporate office, which we completed in 2008

1

2

3

4

5

6

7

8