« WORK

Vinutha/Gautam's Home

Bangalore

Client

Vinutha Kondur & Gautam Nambisan

Project Type

Residential Architecture & Interiors

Area

12,000 sft.

Status

Ongoing

 

Project Team

Anna Cherian, Harish Kumar, Tarunpreet Singh Bhatia, Princy Jacob, Sanal Sugathan, Ambica Ganesh

 

Project Management

UKN Properties

Interior Contractor

Bhuraram

 

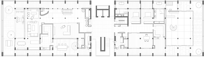
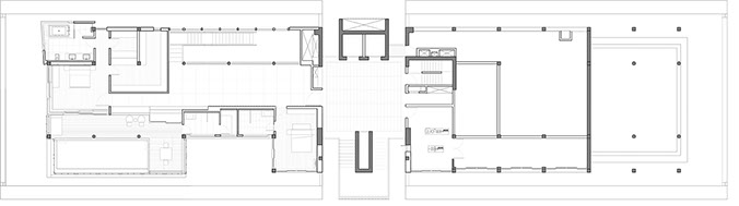
1 Lift lobby

2 Home theatre

3 Terrace

4 Powder room

5 Living

6 Dining

7 Kitchen

8 Store

9 Office

10 Bedroom

11 Utility

12 Perch

13 Pool

14 Master bedroom

15 Gym

 

Perched atop Alila.Bangalore, this villa in the sky responds both to its unique location and the rigorous structure of the building on which it rests.

 

Affording spectacular views out over farm land and onto Varthur Lake the home consists of a series of places of refuge and gathering, coupled with outdoor places of prospect.

 

 

 

1

2

3

3

5

6

7

8

9

10

10

11

4

12

14

13

10

15